地址:上海市閔行區疏影路1280號
傳(chuán)真:021-54883445
郵(yóu)箱:sales@hanxiacao.com
夜(yè)間(jiān)或低能見度的情(qíng)況下,機場目視照明係統(tǒng)可以為飛機提(tí)供起飛、降落和滑行提供目視引導(也被稱作助航燈光)。目前,助航燈光主要包括進近燈光係統(tǒng)、精密進近坡度指示係統、跑道燈光係統、滑行道燈(dēng)光(guāng)係統及其它燈光係統。本(běn)文就進近燈光係統(tǒng),為大家展開介(jiè)紹。
1.進近燈光係統
(1)簡易型:
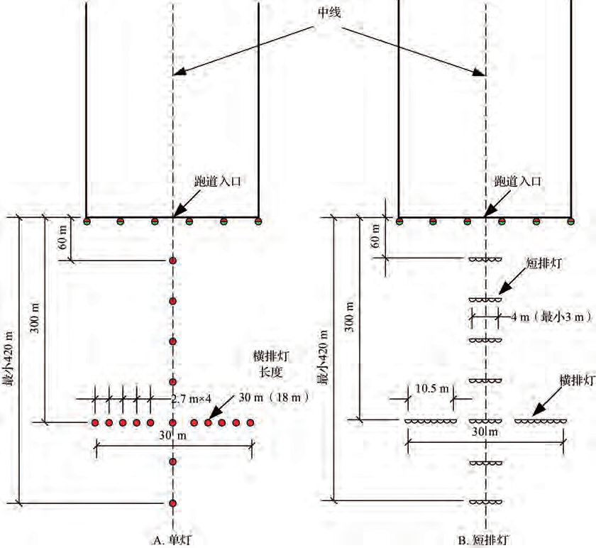
簡易進近(jìn)燈(dēng)光係統(tǒng)由一行位(wèi)於跑道中線延長線上,並盡(jìn)可能延伸到(dào)距跑道入口不小於420m處的燈具(jù),和一排在距跑道(dào)入口300m處一個長(zhǎng)30m或18m的橫排燈組成,可(kě)分為A型簡易進近燈光係統和B型簡易(yì)進近燈光(guāng)係統(tǒng)。

簡易進近燈光(guāng)係統(中線燈間距為60m的(de)情況(kuàng))
A型中線燈為一個單燈,B型中線燈為長度不低於3米的短排燈。
A型(xíng)簡易進近(jìn)燈光係統采用低光強發紅色光的全向燈具,B型簡易進近燈光(guāng)係(xì)統的中線燈和橫排燈是發可變白光的恒定發光燈。

大香蕉9草在线-嵌入式進近側邊(biān)燈
(2)I型:
Ⅰ類(lèi)精密進近燈光係統由以下部分組成:一排位於跑道中線延長線上,延伸至跑道(dào)入口900米處的中線燈,以及一排距跑道入口300米(mǐ)處的、長30米的(de)橫排燈。中線燈和橫排燈(dēng)均為可變白光(guāng)的恒定(dìng)發光(guāng)燈,其中中線燈(dēng)的(de)縱向間距為30米,通常采用短排(pái)燈設計。

三(sān)思-機場進近燈光
(3)Ⅱ、Ⅲ類
Ⅱ類和Ⅲ類精(jīng)密進近燈光(guāng)係統由以下部分(fèn)組成:一排燈具位於(yú)跑(pǎo)道中線延長線上,盡可能延伸至跑道入口900米處(chù);兩排側邊燈延伸至跑道入口270米處;以及兩排橫排燈,分別位(wèi)於跑道入口150米(mǐ)和300米(mǐ)處。
側邊燈對稱於跑道中(zhōng)線延長線,發出(chū)紅光(guāng);橫排燈發出可變白光,屬於恒定發光燈。中線燈的(de)縱向間距為30米,同樣發出可變白光。如果(guǒ)跑道入口內移,道麵燈具將采用嵌入式(shì)設計。
如今,LED節能光源以其適中的亮度和出色的(de)穿透力,能(néng)夠有(yǒu)效提升視覺舒適度,因此非常適合用於機場的目視照明燈具如(rú)對機場進近燈光(guāng)係統感興趣的,歡迎(yíng)谘詢上海大香蕉9草在线。
*本文參(cān)考標準:MH 5001-2021 《民(mín)用機場飛行區技(jì)術標準》